Um apartamento para apreciar a vista, viver cercado de arte e receber com elegância.
Apartamento
LC
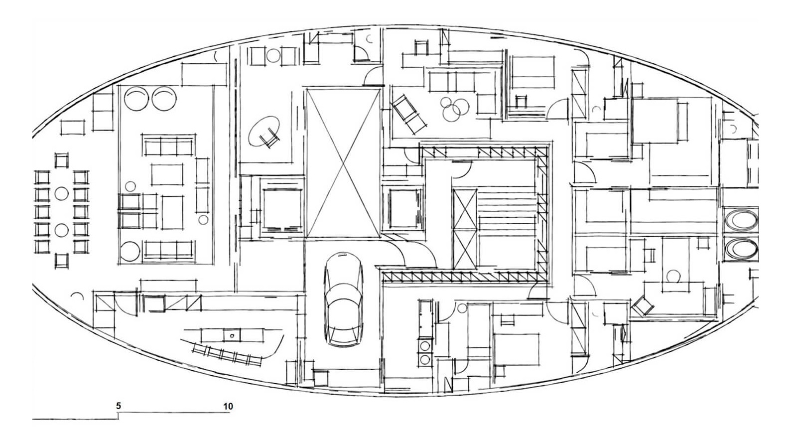
Projeto com sofisticação de detalhes e materiais, para receber um mobiliário de peso e obras de arte variadas. O detalhe mais especial fica a cargo da marcenaria utilizada no forro e paredes das salas. A vista deslumbrante do apartamento foi explorada em todos os seus ambientes.
Área: 800m²
Local: Belo Horizonte-MG
Arquitetura: Leonardo Rotsen
Fotografia: Jomar Bragança
Local: Belo Horizonte-MG
Arquitetura: Leonardo Rotsen
Fotografia: Jomar Bragança