Uma residência da década de 40 transformada com conforto e leveza.
Residência
FT
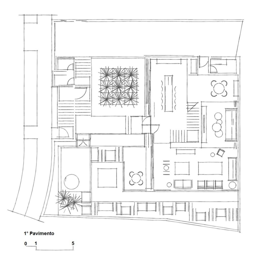
Uma casa da década de 40 em um bairro nobre e tradicional da capital mineira deveria ser totalmente transformada.Por se tratar de uma área de tombamento, mas com um imóvel totalmente descaracterizado, a solução foi de manter toda a estrutura e área construída original, e criar um novo projeto com materiais e conforto para abrigar uma familia jovem.A casa esta em um terreno de aclive e possuia um porão no pavimento inferior e muita escada para acessar o nível principal.O porão foi aberto para a entrada e se transformou no acesso e sala principal. Este teve parte do teto removido e assim integrado ao segundo pavimento, onde está a área íntima da casa.O antigo quintal da casa, onde estava a parte de serviço, foi transformado em uma sofisticada área de lazer.
Local: Belo Horizonte Área: 800m²
Arquitetura: Leonardo Rotsen
Fotografia: Jomar Bragança
Arquitetura: Leonardo Rotsen
Fotografia: Jomar Bragança